Proces realizacji

Proces realizacji

Wstęp

W pierwszej kolejności spotykam się z Inwestorem w dogodnej lokalizacji, online lub w formie rozmowy telefonicznej, aby poznać siebie nawzajem. Omawiamy potrzeby i wizje jakie, spełnić ma nowe lokum, oczekiwania dotyczące zakresu prac projektanta, widełki budżetowe, preferencje stylistyczne, termin realizacji. Chcę dowiedzieć się, dla kogo będę tworzyła aranżację, jaki prowadzi styl życia, czego potrzebuje, o czym marzy. Spotkanie to służy przede wszystkim zbudowaniu relacji, której pozytywny wydźwięk rzutować będzie na dalszej współpracy.

Etap I
  • Zaczynamy od wizji lokalnej. Przeprowadzam wówczas szczegółowy pomiar pomieszczeń oraz instalacji, sporządzam dokumentację fotograficzną. Zdarza się, że inwestycji fizycznie jeszcze nie ma – wtedy bazuję na rzutach dostarczonych od Inwestora.
  • Na podstawie materiałów tworzę dwie propozycje aranżacji w formie rzutów płaskich. Przedstawiam na nich funkcjonalne możliwości, jakie daje mieszkanie w odniesieniu do układu ścian, podziału na pomieszczenia, ich wielkości itd. Widzimy tu  informacje na temat rozkładu mebli, oświetlenia, sufitów oraz elementów wyposażenia. Finalnie wybieramy wspólnie jeden z nich, lub łączymy pomysły w ostateczny układ, tak, aby spełniał wszystkie oczekiwania. Po akceptacji etapu I przechodzimy dalej.
Etap II
  • Na podstawie rozmowy oraz inspiracji wymienionych między mną a Inwestorem tworzę realistyczne wizualizacje wnętrz. Ujęcia przedstawiają charakter i kolorystykę okładzin ściennych i podłogowych, elementy wyposażenia, sprzęty RTV i AGD, tekstylia i inne dodatki, oraz oświetlenie. Materiały graficzne w formie wizualizacji mogą różnić się w odbiorze kolorem, nasyceniem, odcieniem, w zależności od rodzaju ekranu i jego kalibracji. W pakiecie mamy tu  jedną całościową zmianę charakteru wnętrza, tak aby spełniał Państwa oczekiwania. Pozostałe, drobne aktualizacje uwzględniane są już na etapie wykonawczym, lub w formie wizualizacji za dopłatą. Akceptacją wizualizacji zamykamy etap II. Jest to nasza baza do stworzenia dokumentacji technicznej.
Etap III

Dokumentacja techniczna zawiera wszystkie elementy potrzebne do realizacji projektu. Są to szczegółowe rysunki, dla każdego wykonawcy, tj:

  • rzut z inwentaryzacją lokalu;
  • rzut aranżacyjny;
  • rzut ze ścianami i elementami do wyburzenia;
  • rzut ze ścianami projektowanymi;
  • rzut z zabudowami g-k oraz sufitami podwieszanymi;
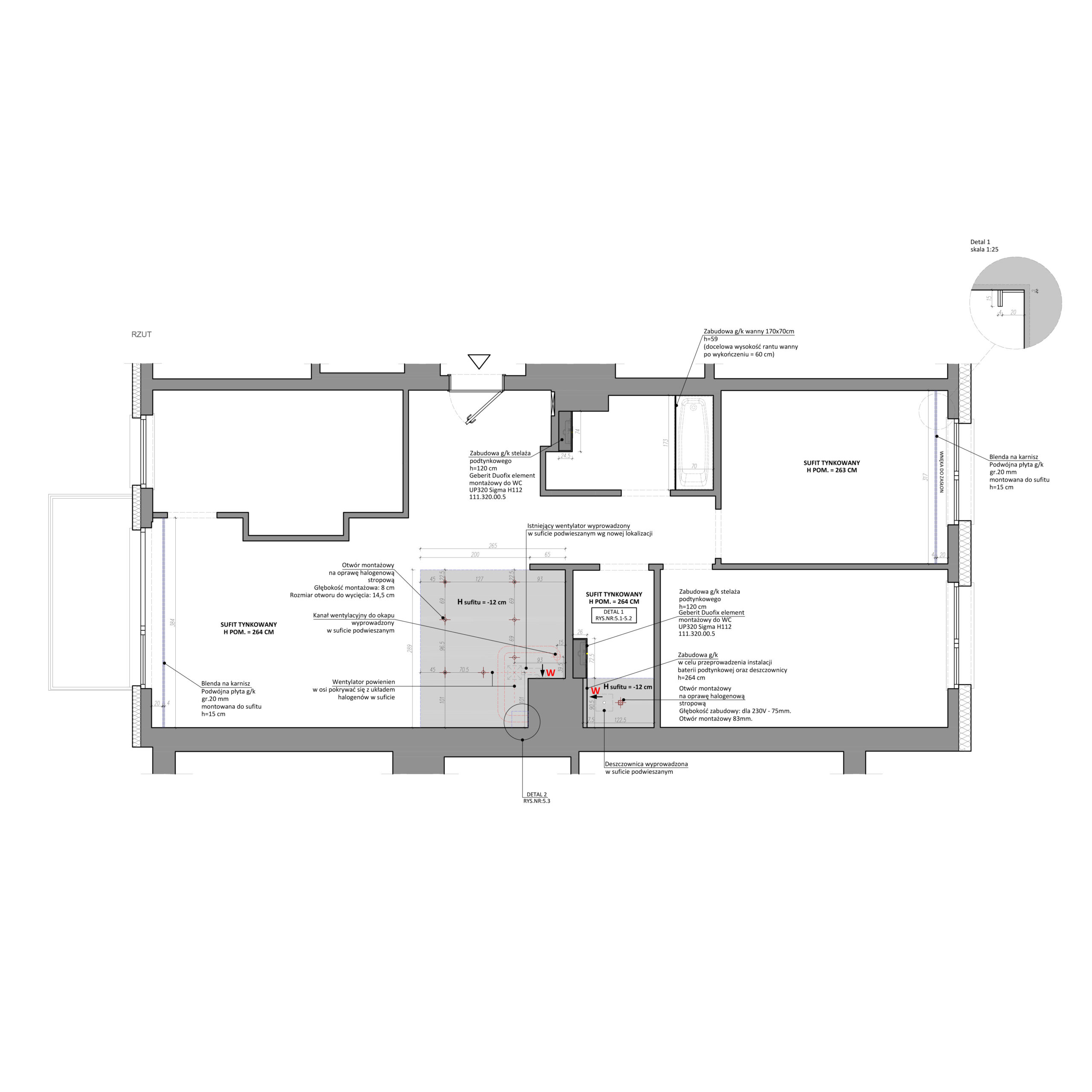
  • rzut z instalacjami sanitarnymi i wentylacyjnymi – znajdują się na nim wymiary, opisy, dodatkowe detale jeśli jest taka potrzeba;
  • rzut z instalacjami elektrycznymi (schemat z opisem oświetlenia, detalami ,napięciem wypustów, wymiarowaniem);
  • rzut z układem posadzki oraz listew przypodłogowych w każdym pomieszczeniu;
  • szczegółowy opis każdego pomieszczenia. Znajduje się w nim rzut pokoju z opisem wyposażenia, widokiem każdej ściany (opis i lokalizacja               farby, tapety, wymiary montażowe półek/ luster itd.;
  • szczegółowa dokumentacja dot. zabudów stolarskich na zamówienie;
  • szczegółówa dokumentacja dot. elementów szklanych, ślusarskich/innych nietypowych na zamówienie;
  • lista zakupowa w formie tabeli z opisem produktów, miejscem zakupu oraz kosztem;
  • wycena od sprawdzonych i znajomych wykonawców.